Клапан обратный взрывозащищенный АЗД 193-06 800х800 мм
Заслонки во взрывозащищенном исполнении(искробезопасном) исполнении предназначены для применения в вентиляционных системах на взрывоопасных производствах, в лабораториях и т.д. Искробезопасность заслонок достигается путём применения разнородных металлов во всех подвижных элементах конструкции, которые соприкасаются между собой. Заслонки АЗД имеют сертификат соответствия требованиям TP ТС 012/2011 «О безопасности оборудования для работы во взрывоопасных средах».
Характеристики:
-
Размеры сечения
800х800 мм
-
Материал изготовления
углеродистая сталь
-
Окраска
в любой цвет RAL
-
Типовая серия
5.904-58
-
Подробные характеристики
-
Доставка и оплата
- Заслонка в сборе во взрывозащищенном исполнении — 1 шт,
- Руководство по эксплуатации заслонки — 1 экз,
- Паспорт- 1 шт.
Назначение
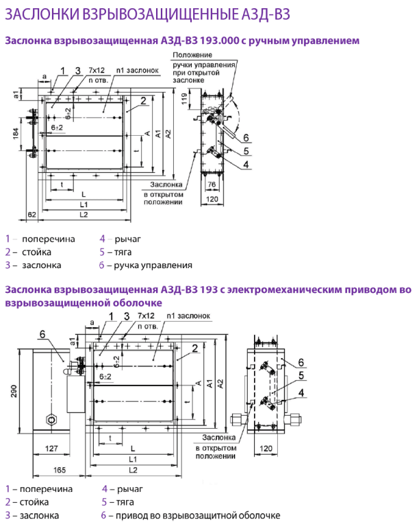
Заслонки во взрывозащищенном исполнении, применительно к типовой серии 5.904-49 АЗД 193.000; АЗД 196.000; АЗД 197.000, предназначены для применения в вентиляционных системах взрывоопасных производств.
Область применения
Взрывоопасные зоны класса 1 и 2 помещений и наружных установок, в которых могут образовываться смеси, отнесенные к подгруппам IIА, IIВ, IIС, в соответствии с указанной маркировкой взрывозащиты, согласно требованиям ГОСТ IЕС 60079-14-2011 и отраслевых правил безопасности и другими нормативными документами, регламентирующими применения оборудования во взрывоопасных зонах.
Условия эксплуатации
В соответствии с требованиями СНиП 41-01-2003 заслонки применяются в вентиляционных системах с давлением 1500 Па и скорости перемещения воздушной смеси 4-20 м/с.
Заслонки нe допускается применять в системах, в которых перемещаются среды с агрессивностью по отношению к углеродистым сталям обыкновенного качества выше агрессивности воздуха, запыленностью более 100 мг/м3, содержащие взрывчатые вещества, взрывоопасную пыль, липкие и волокнистые материалы, а также для перемещения паро-газовоздушных смесей от технологических установок, в которых взрывоопасные вещества нагреваются выше температуры их самовоспламенения или находятся под избыточным давлением. Температура перемещаемой среды нe более +80°C, температура самовоспламенения + 135°C. Перемещаемые смеси не должны содержать взрывчатых веществ и не коррозировать металлы, из которых изготовлена заслонка.
Состав изделия и комплектность
Способы доставки
- Деловые линии
- ПЭК
- СДЭК
- Желдорэкспедиция
- КИТ
- БАЙКАЛ СЕРВИС
- DPD и другие транспортные компании.
- Выделенный транспорт
- Самовывоз со склада производства в г. Казань (по всем товарным группам, кроме товарной группы "Элементы автоматики").
- Самовывоз со склада в г. Москва (товарная группа "Элементы автоматики", товарная группа "Электроприводы")
ВАЖНО: Каждая единица оборудования, отправляемая с помощью транспортных компаний, застрахована от возможных повреждений. Пожалуйста, внимательно осмотрите упаковку и оборудование при получении товара. Если вы заметите какие-либо внешние повреждения, такие как вмятины, сколы, нарушение геометрии и т.д., незамедлительно свяжитесь с нашими менеджерами, до приемки груза в ТК.
Способы оплаты
- Оплата через расчетный счет (р/с) для юридических лиц, ИП
- Оплата картой через терминал
- Оплата товаров на маркетплейсах Ozon, Wildberries, Яндекс.Маркет
Требуется расчёт стоимости оборудования?
Приложите спецификацию, и мы вышлем Вам коммерческое предложение
Заполните форму


